Egy könnyűszerkezetes családi ház építése nemcsak a kivitelezésről szól – legalább ilyen fontos az indulás megfelelő előkészítése is.
A Ligno Home abban nyújt segítséget, hogy az Ön által megbízott tervező által elkészített dokumentáció alapján minden szükséges engedély és előkészítő lépés gördülékenyen megtörténjen.
Amennyiben rendelkezik már építési telekkel és statikai tervdokumentációval, a következő lépéseket mi segítünk koordinálni:
az engedélyezési eljárások egyeztetése,
az árkalkuláció előkészítése az adott terv alapján,
valamint a kivitelezésre alkalmas végleges dokumentáció ellenőrzése, szükség esetén kiegészítése.
A Ligno Home nem végez tervezést, de tapasztalatainknak köszönhetően szakmai szempontból is fel tudjuk hívni a figyelmet az esetleges kivitelezési nehézségekre vagy módosítási javaslatokra. Célunk, hogy az építkezés már az első lépéseknél megbízható alapokon induljon, felesleges körök és váratlan költségek nélkül.
Tudjuk, hogy a sikeres közös munka alapja a pontos dokumentáció és a nyitott kommunikáció – ebben számíthat ránk.
Mire számíthat az előkészítési szakaszban?
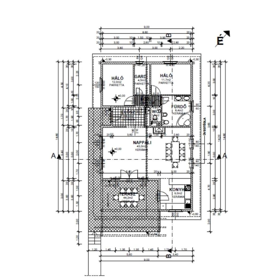
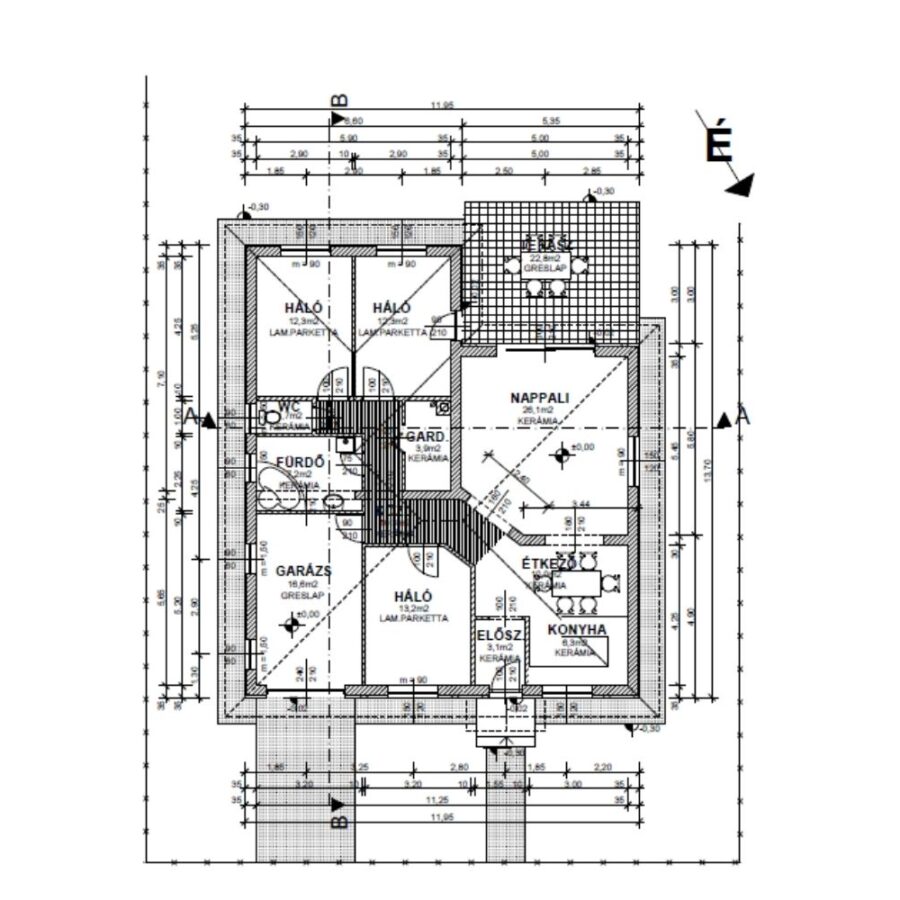
A sikeres kivitelezés első lépése a pontos és kivitelezhető tervek átvizsgálása, valamint a szükséges dokumentációk előkészítése. A Ligno Home ebben a szakaszban is biztosítja a szakmai támogatást: segítünk eligazodni az engedélyezési folyamatban, és minden esetben a kivitelezés szempontjából is átgondolt megoldásokat ajánlunk.
Meglévő tervek feldolgozása
Kivitelezésre optimalizált tervek








